Many owners of motorized equipment strive to use their available vehicles as effectively as possible. When building various structures, improving garden plots, and doing other household work, it becomes necessary to move various loads over short distances. In a number of cases, this task is within the power of a motorcycle with a sidecar trailer. With it you can significantly expand the range of appropriate work: transporting sand, gravel, sawn timber, hay, household waste, etc. An optimal solution can be considered a single-axle trailer of the simplest design. On the pages of the magazine, descriptions of such devices have been published many times. Many DIY projects had an original design solution.
I bring to the readers’ attention my version of a sidecar trailer for a motorcycle. The highlight of the proposed design is the suspension unit. It is without levers, springs, and shock absorbers, which substantially complicate the design and require additional time and material costs. I solved this problem differently — I installed a leaf spring instead of shock absorbers; it not only provides sufficient softness of ride, damping oscillations from road irregularities, but at the same time also serves as the axle.

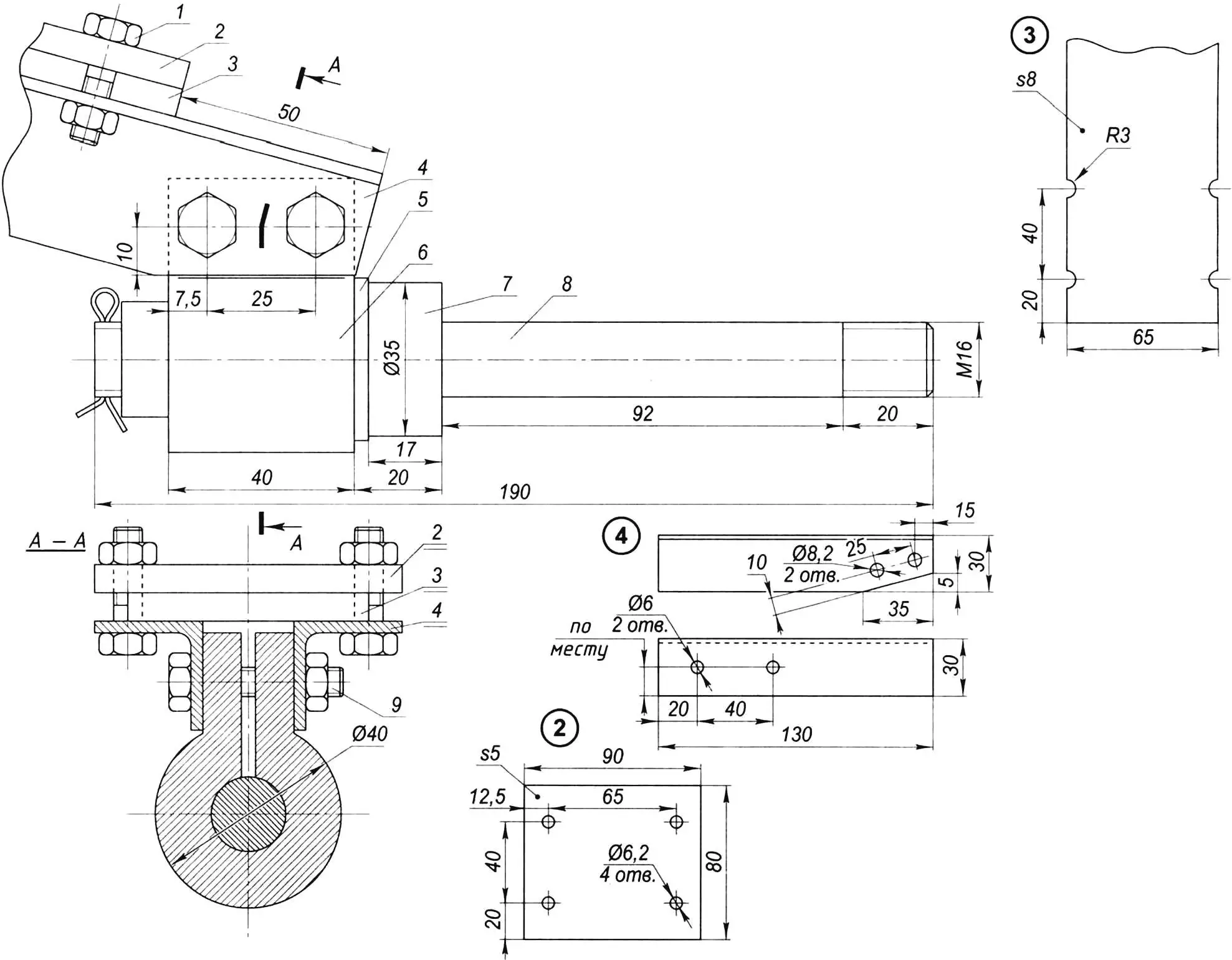
1 — cross beam (angle 35×35, 2 pcs.); 2 — drawbar (pipe Ø32); 3 — coupling device (tie-rod end from a truck); 4 — strut (pipe Ø30); 5 — longitudinal beam (pipe Ø50, 2 pcs.); 6 — front crossmember of the frame (from the side trailer of the “IZH” motorcycle)
When manufacturing the trailer, widely used were available parts from motorcycles and motor scooters. Thus, the main load-bearing element of the construction — the frame — was “borrowed” from the side trailer of a “IZH” motorcycle, found in a pile of scrap metal, waiting for its turn to be melted down. After cutting off everything unnecessary, I obtained a frame with dimensions 650×800 mm (of course, such a one can be welded, for example, from water pipes with a diameter of 50 mm). For attaching the leaf spring to the side rails of the frame, from below I welded a transverse beam made of two angles sized 35x35x3 mm (or from a channel of a suitable size). For greater stiffness, I connected it with the rear crossmember of the frame by means of a spacer strut made from a 30 mm diameter pipe. To the beam and the front crossmember, I welded a drawbar (32 mm pipe), and on its front end I installed a coupling device — the steering tie rod from a truck. On the towing motorcycle I fixed a pivot lever from the same vehicle, whose hole, while driving with the trailer, receives the end of the steering tie rod.

1 — body; 2 — longitudinal beam (hardwood, 2 pcs.); 3,4 — U-bolts; 5 — tie bolt M8; 6 — wheel axle mounting unit; 7 — spacer (wood block 35×70, L500); 8 — transverse beam; 9 — frame longitudinal beam
The leaf spring is assembled from three sheets from a GAZ-51 car (if desired, you can use more). The lower sheet is 900 mm long, the second — 700, the third — 600 mm (with a larger number, each subsequent one is shorter by 100 mm); the pack is tightened with a central bolt. To the transverse beam of the frame, the spring is attached through a spacer 35x70x500 mm made of hardwood by the same central bolt and two U-bolts. At the ends of the lower spring, the wheel suspension mounting units are fixed, made using parts from the “IZH” side trailer. If they are not available, you will have to resort to the services of a professional turner and machine the missing parts.

1 — bracket mounting (M6 bolt, 4 pcs.); 2 — clamping plate (steel, sheet s5); 3 — leaf spring; 4 — axle bracket (angle 30×30, 2 pcs.); 5 — washer; 6 — clamp (steel); 7 — spacer bushing (steel, 35 round); 8 — wheel axle (M16); 9 — tie bolt M8 (2 pcs.)
The axle unit is assembled separately, and only then holes are drilled for the fastening bolts on site. The design of the unit is clear from the drawing: it is a split bushing in which the axle is clamped and using two angles and a plate it is fastened to the end of the leaf spring. Because drilling it is difficult, instead of holes at the ends, grooves are sawn to a depth equal to half the diameter of the fastening bolts.

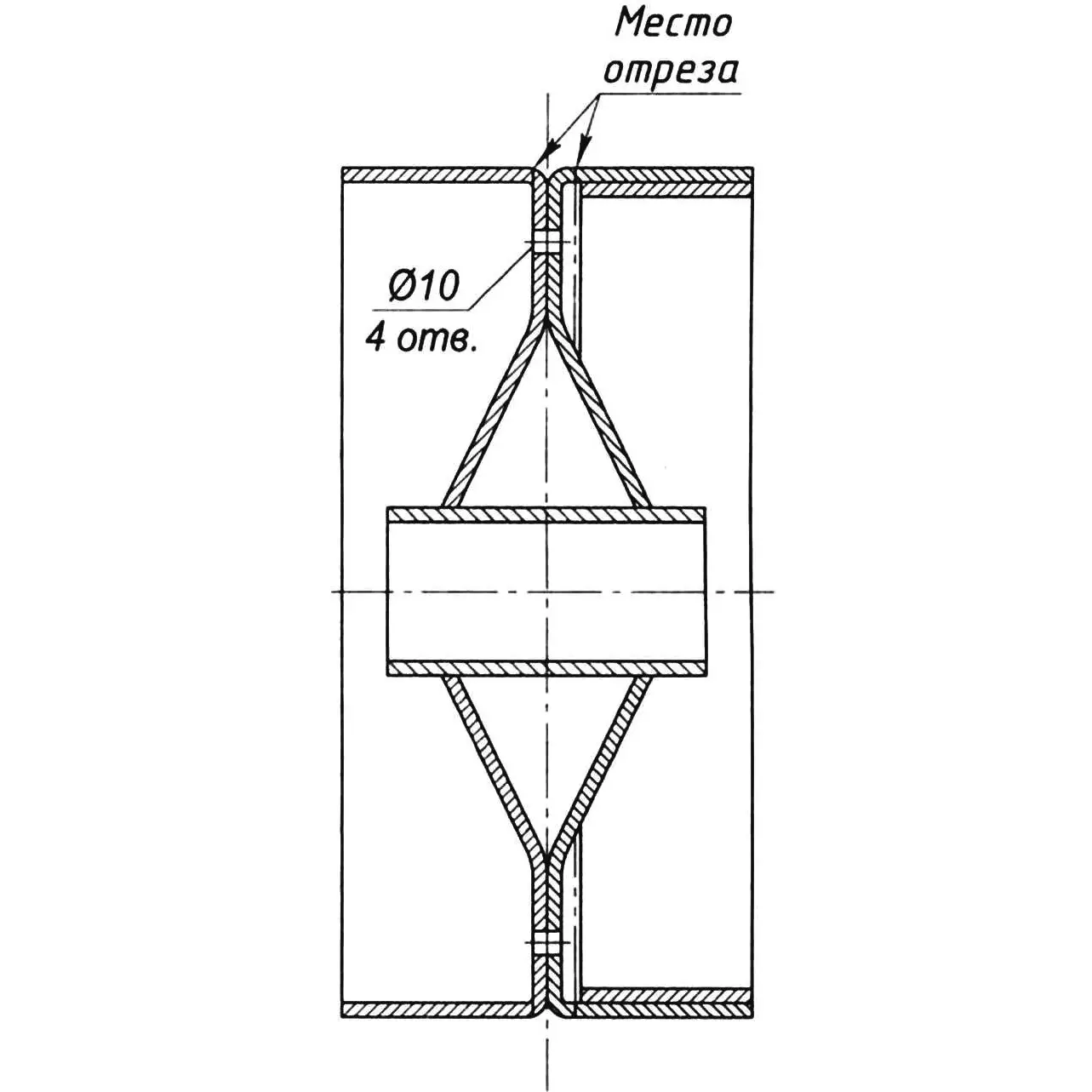
The trailer wheels are from the “Vyatka” motor scooter of the first production batches; the hub is modified from the “IZH” motorcycle. A wheel that has become unusable is disassembled, and from the hub the brake drum is cut off with a hacksaw for metal, or with an angle grinder, or on a lathe (leaving only a flange 5—7 mm high). On the other side of the flange there must be nothing — the wheel will be fastened to it. For this, four 10 mm diameter holes are drilled in the wheel disc. The hub is fixed on the axle with the standard nut and cottered.

The body with dimensions 1200х900х350 mm is welded from angle iron 25×25 mm; the floor and sides are made from galvanized sheet 0.7 mm thick. To protect from dirt over the wheels, fenders from a cargo motor scooter are installed. Along the bottom of the body there run two beams 50x60x1200 mm, to which it is attached to the frame using U-bolts. The rear side is foldable.

Later, specifically for transporting hay, another body was made, resembling a cart.
The trailer is painted with automobile paint: the frame is black, the body is green.
“Modelist-konstruktor” No. 6’2009, P. BELOUSOV



